首次解密:深圳国际会展中心超级工程,是如何进行防水设计的?
扫描到手机,新闻随时看
扫一扫,用手机看文章
更加方便分享给朋友
深圳国际会展中心这一超级工程是如何进行防水设计的?当前,TPO、PVC等为代表的高分子防水卷材因其在性能、耐久和环保等方面的突出优势,正在成为行业新一轮产业升级主力防水材料的同时,它们在深圳国际会展中心项目中又是如何被合理有效利用的呢?

4月9日,AUBE欧博设计在第四届“高分子防水卷材产业发展研讨会上”,与近200位业内专家共同探讨高分子防水卷材产业发展的未来。
本期欧talk重点分享AUBE欧博设计副总经理、执行总建筑师丁荣及AUBE欧博设计副总建筑师吴凡在会议当天以《高分子防水卷材在深圳国际会展中心的应用》为主题的演讲,首次解密深圳国际会展中心的防水设计。
本期欧Talk嘉宾

高效的排水组织是防水设计的根本保障
深圳国际会展中心所在场地属于海河混合堆积地形,原为鱼塘等滩涂地,现人工堆填为储备用地,一期占地面积121.4公顷,场地±0特别标高为7.0米。建成后的截流河在本工程区河段50年一遇洪水位估算为3.21~3.23m,丰水期地下水位平均标高约3.45米。

项目选址
展厅屋面雨水采用虹吸雨水系统排出,天沟位于屋面南北两侧。屋面设计排水能力为100年,虹吸系统为10年重现期,虹吸管道溢流系统采用100年重现期。
室外雨水设计流量:40351.97L/S。
*项目设计重现期全部取大空港片区较高规格10a。

展厅排水设计

室外雨水系统概况
地 下 室 防 水
深圳国际会展中心地下室不计容建筑面积56万平方米,计容2万平方米,地下共两层,分南北两区,在地下二层通过凤塘大道下穿通道连通。地下一层功能为汽车库,设备机房,厨房及安保用房,地下二层功能为汽车库和设备机房,总停车位约9085辆。
深圳国际会展中心地下室防水面积约63万平方米,全球较大的地下汽车库。因地下室规模超大,拟按一级防水设防。
地下室概况

地下室尺度
地下室埋深及地下水位
地下室二层开挖深度约10.4m,基底特别标高约:-3.4m;地下室一层开挖深度约6.6m,基底特别标高约0.4m。
场地地下水埋深较浅,丰水期高程为1.45~5.2m左右,平均高程为3.45m,枯水期平均高程为2.11m。
注:±0.000
特别标高7.000

地下室埋深及地下室水位
在地下室防水设计过程中,重点关注以下几点:
1)地下水位高,与潮汐涨落、季节变化、截流河等密切相关;
2)场地软弱下卧淤泥层分布深厚,真空堆载处理后的淤泥也未完全固结,且基坑将超挖一米,回填后可能继续产生沉降和不均匀沉降,对防水层造成损害;
3)单层规模巨大,后浇带对防水产生的影响;
4)基坑支护对防水产生的影响。
由于地下室基坑超挖一米,砖渣沙包回填后预期将带随底板下砼垫层、防水保护层及侧墙保护层一起沉降,因此考虑不做底板防水保护层,拟选用预铺单面反粘卷材直接与底板、侧墙混凝土结合。
底板方案(150厚建筑面层不设排水沟)
一级防水(一刚一柔)
1、砼密封固化剂(燃烧性能A级)
2、最薄处100厚C30混凝土,集水坑周边5米范围内1%找坡,随打随抹光,内配φ6 @ 20 0双向钢筋网,每4.5米设分仓缝,缝深20, 缝宽20,缝内嵌单组分聚氨酯建筑密封胶(不做排水沟)
3 、20厚建筑夹层塑料板疏水层,抗压强度300Kpa,凸点朝下
4、 P10结构自防水底板
5、 1.2厚非沥青基高分子自粘胶膜防水卷材(白色,含0.5厚胶膜),预铺反粘,专用密封胶带密封
6、 200厚C15混凝土
7、砖渣沙包回填,或土壤固化剂
侧墙:一级防水(二柔一刚)
1 、P10结构自防水侧墙,清理干净平整,渗透环氧基面处理
2 、2厚聚氨酯防水涂料
3 、1.5厚高分子交叉层压膜自粘防水卷材,遇阴阳角上翻不小于300
4 、30厚挤塑聚苯板保护层
5、回填土分层夯实
5吨/平方米车道顶板
(展厅间消防车道、货车道)I级防水(二柔一刚)
1、沥青地面(详景观做法)
2、 150厚C30混凝土,内配φ8 @ 20 0钢筋双向钢筋,间隔40 - 50米设缝
3 、300厚6%水泥石粉渣稳定层
4 、30厚水泥砂浆
5 、300g无纺布隔离层隔离层
6 、3厚自粘聚合物改性沥青聚酯胎防水卷材
7、 2厚非固化橡胶改性沥青防水涂料
8、 结构自防水顶板
种植顶板
(局部)I级防水(二柔一刚)
1、种植土层(详景观做法)
2、 X厚凹凸蓄排水板(顶带泄水孔,覆土250以上,板厚不应小于15;覆土450以上板厚不小于25, 覆土800以上板厚不小于50,详景观做法)
3、 70厚C30细石混凝土找坡,内配φ6 @ 150钢筋双向钢筋
4 、300g无纺布隔离层隔离层
5、 4厚聚合物改性沥青聚酯胎耐穿刺防水卷材,遇墙上反高出种植土面不少于500
6 、2厚非固化橡胶改性沥青防水涂料
7 、结构自防水顶板,表面压实抹光
地 上 主 体 防 水
深圳国际会展中心地上主体19个展厅和3个登录大厅、中央开敞廊道均为钢结构梁柱;立面基本为幕墙体系;展厅和中央廊道屋面均为金属屋面;其余屋面为钢筋混凝土屋面。
硬质屋面
(倒置式保温、结构找坡)I级防水(二柔一刚)
1 、30mm石材,六面满涂防污剂,专用勾缝剂擦缝(详景观设计)
2、 30厚M10聚合物水泥砂浆结合层(详景观设计)
3、 50厚C25混凝土,表面压光,混凝土内配Φ6@200双向钢筋(钢筋居中)双向中距150,每≤4.5米留缝(钢筋在缝处断开),缝宽15,缝内嵌单组分聚氨酯建筑密封胶
4、 300g/平方米无纺布隔离层
5、挤塑聚苯保温板(燃烧性能应为B1级,厚度由节能计算确定)
6、 3厚自粘聚合物改性沥青聚酯胎防水卷材,遇墙上反不少于500
7 、2厚非固化橡胶改性沥青防水涂料
8、钢筋混凝土屋面板,结构找坡3%至排水沟,原浆抹平压光
种植屋面
(倒置式保温、结构找坡),I级防水(二柔一刚)
1、种植土(厚度,做法详景观设计并应符合结构计算要求)
2 、40厚生态多孔纤维棉息壤层
3 、X厚凹凸蓄排水板(顶带泄水孔,覆土250以上,板厚不应小于15;覆土450以上板厚不小于25, 覆土800以上板厚不小于50,余同)
4、 70厚C30混凝土,表面压光,混凝土内配Φ6@200双向钢筋(钢筋居中)双向中距150,每≤4.5米留缝(钢筋在缝处断开),缝宽15,缝内嵌阻根型单组分聚氨酯建筑密封胶
5 、300g/平方米无纺布隔离层
6、挤塑聚苯保温板(燃烧性能应为B1级,厚度由节能计算确定)
7 、4厚聚合物改性沥青聚酯耐穿刺防水卷材,遇墙上反种植土面不少于500
8、2厚非固化橡胶改性沥青防水涂料
9、钢筋混凝土屋面板,底平上坡0.2%-0.5%至排水沟,原浆抹平压光。
登录大厅屋面及排水沟构造做法
屋面(8米标高中央廊道)
I级防水(二柔一刚)
1 、50mm石材,六面满涂防污剂,专用勾缝剂擦缝(详景观设计)
2 、30厚M10聚合物水泥砂浆结合层
3、 100厚C30混凝土,表面压光,混凝土内配Φ6@200双向钢筋(钢筋居中)双向中距150,每≤4.5米留缝(钢筋在缝处断开),缝宽15,缝内嵌单组分聚氨酯建筑密封胶
4 、300g/平方米无纺布隔离层
5 、3厚自粘聚合物改性沥青聚酯胎防水卷材,遇墙上反不少于500
6 、2厚非固化橡胶改性沥青防水涂料
7、钢筋混凝土屋面板,底平上坡0.5%
中廊与展厅会议室连桥变形缝(兼排水沟)
设备平台
(建筑找坡)I级防水(二柔一刚)
1、 50厚C25细石混凝土,表面压光,混凝土内配6mm@200双向钢筋(钢筋居中)每≤4.5米留缝(钢筋在缝处断开),缝宽15,缝内嵌聚氨酯建筑密封胶
2 、X厚泡沫混凝土找坡层,坡度不小于2%,最薄处30
3、 300g/㎡无纺布隔离层
4、挤塑聚苯保温板(燃烧性能应为B1级,厚度详见节能设计说明)
5、 3厚自粘聚合物改性沥青聚酯胎防水卷材,遇墙上翻不少于500
6 、2厚非固化橡胶沥青防水涂膜,遇墙上翻不少于500
7、钢筋混凝土屋面板,原浆抹平压光

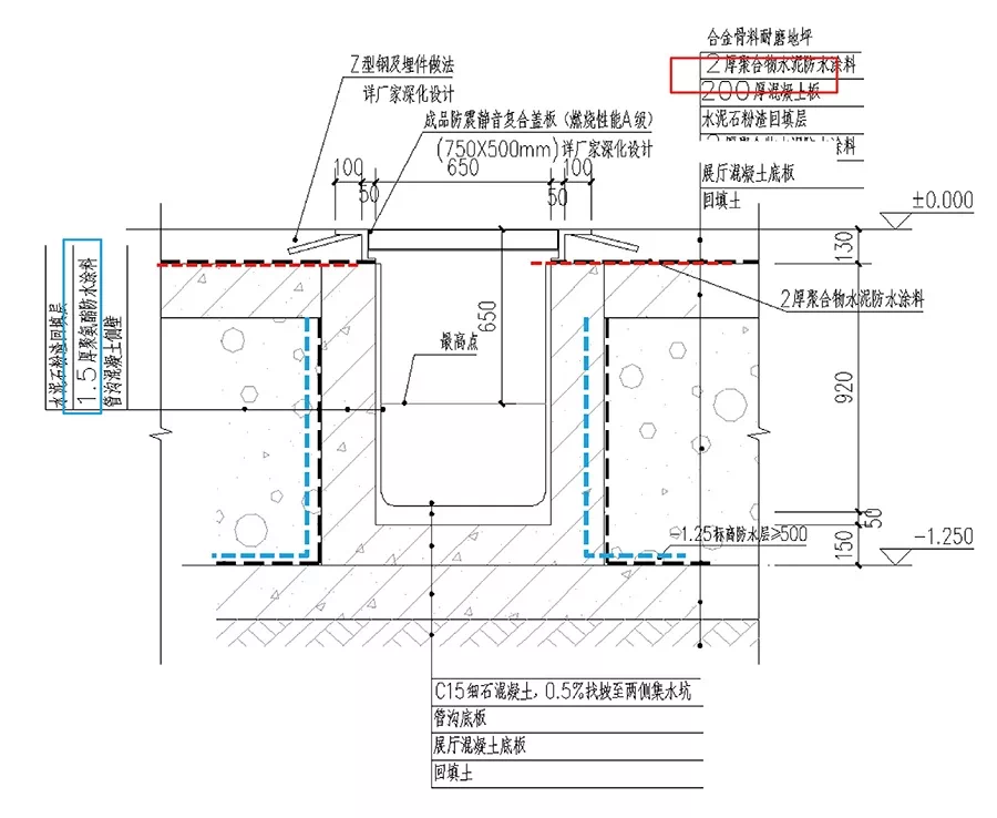
展厅地面防潮及管沟防水做法
金属屋面防水
深圳国际会展中心金属屋面防水面积约73.5万平方米,本项目要求为I级防水,因此屋面防水构造层次上,采用了镀铝锌氟碳辊涂直立锁边钢屋面板为外层防水层,1.5mmTPO防水卷材为二次防水层的做法。

屋面防水构造层次

展厅
屋面板现场照片

屋面与天沟连接部位防水构造做法

屋面山墙部位防水构造做法
超级工程——全球排名前列大国际会展中心
地处大湾区中心城市的深圳国际会展中心,正以全球排名前列大国际会展中心的姿态顺势崛起,建成后将以当代较高价值的创新型经济格局载入世界会展业的史册,强力助推深圳迈向高级城市,并将造就无可估量的经济、生态效应,助力深圳以更高的城市格局打开通往世界的窗口。
作为名副其实的“超级工程”,深圳国际会展中心已创下多个世界之最,其中金属屋面防水面积达73.5万平方米;地下室防水面积达63万平方米,使其成为全球防水面积较大的单体建筑 。

(欧博设计供稿)
声明:本文由入驻焦点开放平台的作者撰写,除焦点官方账号外,观点仅代表作者本人,不代表焦点立场。


