户型图曝光!宝中楼市或将迎来“搅局者”?
扫描到手机,新闻随时看
扫一扫,用手机看文章
更加方便分享给朋友
论新盘入市效率,还得看招拍挂项目。
宝中新盘“断供”多年,在去年终于有了新鲜“血液”,继越秀瑞樾府后,中铁阅臻府(推广名:中铁·能建·阅臻府)已经透露了入市计划——预计6月份推出首批住宅产品。
中铁阅臻府,是近几年来宝中推出的第四块宅地,前三块分别被鸿荣源、南通亚伦(安居房项目)、越秀竞得。
中铁阅臻府已经开放了临时展示中心,地址位于宝安区中意智慧大厦11楼。
01
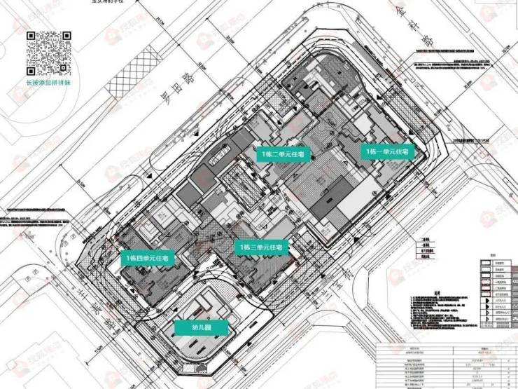
项目介绍:首期将推319套房源
中铁阅臻府位于金科路与罗田路交汇处西南侧,项目西北侧是海韵学校,东北侧是新安中学(集团)高中,西南侧有广深沿江高速(直线测距约200米)、面海看企鹅岛。

中铁阅臻府总占面约1.5万㎡,总建面约11.1万㎡,规划容积率5.4,规划车位710个。
根据中铁阅臻府的建设工程规划许可证显示,项目共计629套住宅。
中铁阅臻府由4座31/37层高的住宅楼+1座3层高的幼儿园组成,住宅梯户比2梯5户,预计2027年交房。
中铁阅臻府是深圳首宗竞现房销售的地块,有近一半面积的住宅需得等现房才能卖。
因此,预计今年首期将先推售1-1栋和1-2栋约319套住宅,剩余的2栋要2025年后现房销售,具体以官方公示为准。
目前,中铁阅臻府的官方户型图已经公示,建面约95-108-138㎡的3-4房。
户型图上未标注尺寸,其中建面约95㎡户型为竖厅设计,建面约108㎡、109㎡产品分别有竖厅、横厅布局可选,建面约138㎡的户型为客餐厅互相独立的通透格局。

中铁阅臻府的产品,除了有建面约95㎡起步的产品外,建面约108-135㎡与越秀瑞樾府建面约109-145㎡的产品格局有神似感。
02
价格:毛坯限售均价≤8.86万/㎡
价格方面,中铁阅臻府毛坯限价8.86万/㎡,与越秀瑞樾府限价持平,但比鸿荣源宝中地块要高近3100元/㎡。
越秀瑞樾府住宅的备案均价约8.85万/㎡,开盘近半年整体去化刚过6成,还有近4成房源待售。
二手住宅方面,项目周边有深业新岸线、高发西岸花园等05/06年建成的小区房。
例如,深业新岸线的二手房参考价约8.84万/㎡,挂牌价在10万/㎡左右。根据行舟深房小程序显示成交价在8-9万/㎡(仅供参考,具体以实际成交价为准)。

高发西岸花园的二手房参考价同样是8.84万/,不过项目挂牌价在12万/㎡ 左右,实际成交价在9-11万/㎡左右。

综合周边二手房来看,中铁阅臻府相对有一定的优势,至于项目具体的售价要等住建局官方公示,主要还是看开盘时的市场行情,就目前情况来看,预计不会高过越秀瑞樾府。
03
周边生活配套:关键词“1公里”
中铁阅臻府虽然属于宝中片区,但居于比较边缘的位置,相对而言又有稍许不便,距离各大配套直线距离均有1公里左右。

轨道交通方面,中铁阅臻府周边虽然5条地铁线路(在运营的1/5/11号线,在建的15号线及规划中的28号线),但项目距离地铁口均稍远。短期内最近的地铁为5号线宝安站,地图测距接近1公里(步行距离)。
商业方面,宝中有壹方城、深圳前海hop天地、欢乐港湾等大型综合性商业,稍远点还有宝安大仟里、前海山姆、前海壹方汇等商圈。
教育资源,中铁阅臻府周边有海韵学校、宝安小学、新安中学第一实验学校等。具体入学以当年教育局公示为准。
文娱配套方面,中铁阅臻府周边有宝安体育馆、欢乐港湾、宝安滨海文化公园等,满足日常休闲运动。
综合来看,中铁阅臻府的户型起步面积相对较小,相比越秀和鸿荣的项目,入手门槛也相对较低;不过项目所处板块相对宝中其他新盘而言略偏边缘。就目前市场来看,新入市楼盘多采用“价格战”的方式来摸底,宝中新房价格已经到8字头,如果市场恢复乏力的话,中铁阅臻府会是宝中的房价新的“搅局者”吗?
声明:本文由入驻焦点开放平台的作者撰写,除焦点官方账号外,观点仅代表作者本人,不代表焦点立场。


