南山豪宅连夜开工赶入市?深湾玖序更多细节已确认
扫描到手机,新闻随时看
扫一扫,用手机看文章
更加方便分享给朋友
中海深超总项目连夜开工赶入市?2024年深圳下一个“日光盘”会是TA吗?
日前,中海深湾项目重定案名,一改前期的“深湾胤府”,命名为“深湾玖序花园”。
有深圳当前市场快速回温、宝中新盘开盘热销几近日光的市场氛围加持,预计中海深湾玖序花园将加速入市脚步。
目前深湾玖序花园已经开放临时展厅(主要了解项目的区位规划、项目及产品的设计理念及风格等,还没有户型图),预计近期开放营销中心,官宣将推售515套产品,为建面约196-252-328㎡大平层及少量建面约400-600㎡顶奢复式。是目前市面上少有的纯大宅小区,项目毛坯限价13.3万/㎡。
据家在深圳网友透露,深湾玖序花园连夜开工,目前已出地面几层了,看来项目已经在全力赶工,为入市做准备了。
项目介绍
中海深湾玖序花园,位于华侨城中学、中信红树湾、万科臻湾汇、神州数码总部大厦等围合片区,是区域内时隔22年,再一次推出的住宅用地。
深湾玖序花园的效果图已经流出,外立面看整体设计奢华大气,品质感满满。
深湾玖序花园占面约3.46万㎡,规划总建面约20.77万㎡,规划将建约19万㎡住宅,0.6万㎡商业,另外还有9班幼儿园、老人日照中心、托儿所等多个社区配套,整体的容积率≤6.1。


中海深湾玖序花园共规划6栋楼体,其中可售商品房房有5栋,共规划515套住宅,另一栋为自持租赁住房。
各楼栋的梯户比分别为4梯3户/4梯2户/3梯2户。
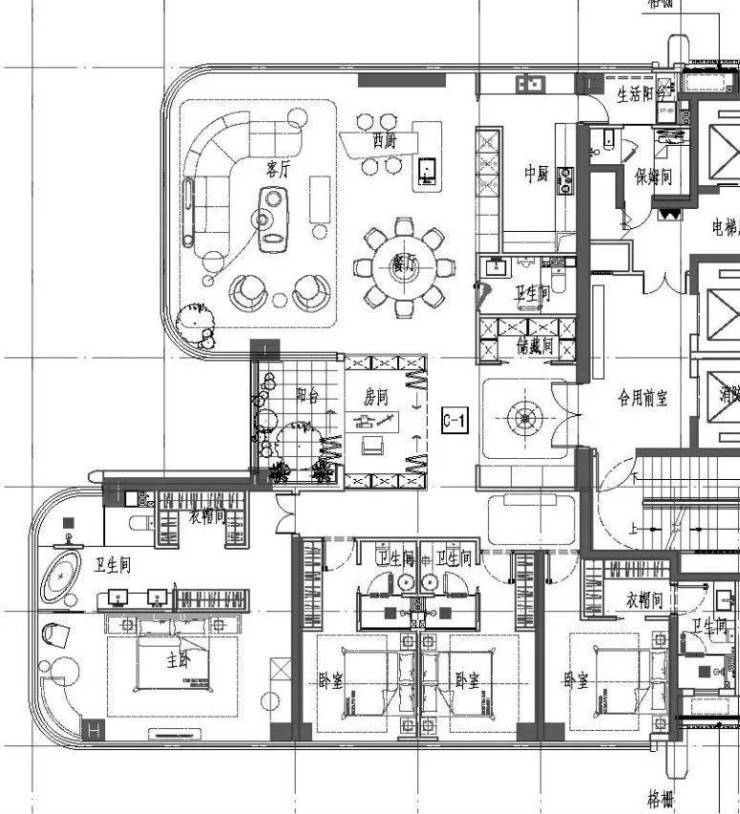
网传户型图如下(仅供参考,具体以项目公示为准):
建面约196㎡的3房3厅2卫,共有128户。
建面约252㎡ 4房3厅2卫,共有237套。
建面约328㎡ 4房3厅4卫,共有142套。
以上户型仅供参考,具体等官宣户型图公布。
中海深湾玖序邻近红树湾南区及万科瑧湾汇、C塔等标志性建筑及小区,地理位置非常优越,附近即是地铁2号线红树湾站。
当然,项目虽是近海豪宅,但看海视角或会被或被万科瑧湾汇公寓,招商银行全球总部大厦、中信金融中心等总部大楼所遮挡。
声明:本文由入驻焦点开放平台的作者撰写,除焦点官方账号外,观点仅代表作者本人,不代表焦点立场。


