3746套房源!前海山樾湾安居房再发车,配售均价约4.26万/㎡
扫描到手机,新闻随时看
扫一扫,用手机看文章
更加方便分享给朋友
前海安居房又双叒发车了!
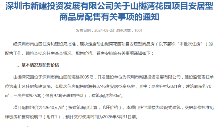
8月23日,南山住建局发布山樾湾安居商品房配售公告,本次共配售3746套安居型商品房。其中,两房户型2821套,建筑面积约70㎡;三房户型925套(包含97套无障碍户型),建筑面积约90㎡,配售均价为42640元/㎡,预计交付使用时间为2026年8月31日前。

有认购申请意向的家庭需现场看房的,须通过网上预约。网上预约流程为:登录深圳市住房和建设局网站—>“政务服务”—>“服务主题”—>“住房保障服务”—>“预约看房”提交预约申请。
有意申购的认购申请家庭,应登录深圳市住房和建设局网站—>“政务服务”—>“服务主题”—>“住房保障服务”—>“安居型商品房认购申请”,提交认购申请
根据公告,现场看房时间为2024年8月24日至2024年9月6日,网上提交预约看房的时间为2024年8月23日12:00至2024年9月5日18:00。
网上申请认购时间为:2024年8月23日12:00至2024年8月29日18:00。
前海山樾湾花园是南山目前在售的唯一一个安居房,也是体量最大的可售保障房,共有4900套房源。本批是山樾湾剩余房源的第二次配售,前期配售仅去化1154套房源。
项目介绍
山樾湾花园位于前海妈湾片区,紧邻月亮湾大道,项目距离在建的地铁15号线西部物流站约890米(地图测距)。
项目用地面积约6万㎡,总建筑面积约58万㎡,共13栋塔楼,房源总数4900套,为纯安居型商品房,户型约70-90㎡2-3房。
项目70㎡的户型主要有经典竖厅和双龙抱珠两种格局可选;90㎡则均为普通竖厅格局。部分户型图展示如下:



山樾湾花园作为大社区,山樾湾花园小区内部配套有商业、泳池、园林等,整体的设施较为齐全,同时整体的区位,外部配套(小南山),轨交等各方面也都较为优异。
但项目周边有高架桥、码头,会有噪音污染,同时目前货柜车较多,路面灰尘较大。
声明:本文由入驻焦点开放平台的作者撰写,除焦点官方账号外,观点仅代表作者本人,不代表焦点立场。


