莫川设计-百仕达89㎡现代风格装修案例分享
扫描到手机,新闻随时看
扫一扫,用手机看文章
更加方便分享给朋友
1. 基本信息
项目地址:深圳市罗湖区百仕达
户型: 3 室 2 厅
装修风格:现代风格
项目面积:89平
兴趣爱好:看书、玩游戏
常住人口:两夫妻和小孩
2. 预 算
设计费:¥20000
施工费:¥190000(半包)
3. 设计亮点
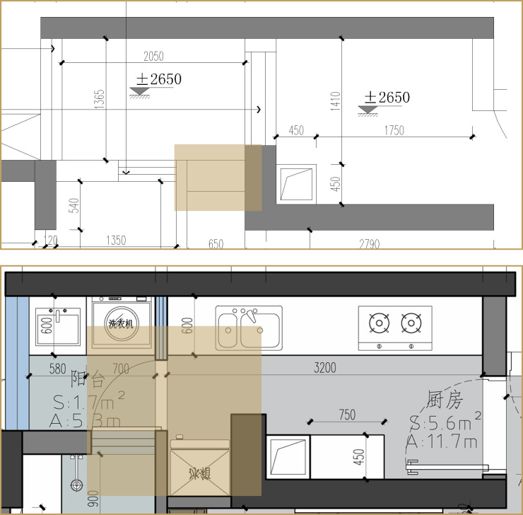
去阳台的门改到从厨房进去,增大厨房空间,多出了个放冰箱的位置。
小孩房的空间有限,设计师充分利用了飘窗台,做成一个书台以供小孩平时使用。
主卧的进卫生间的门设计了隐藏门,关上门的时候是造型墙。
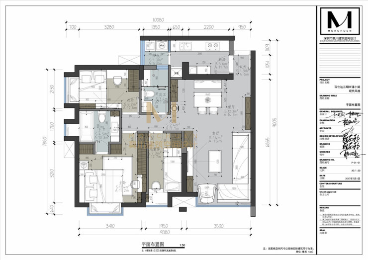
【原始户型图】
【平面布置图】
3. 区域空间
【客厅】
家要有温度。以象牙色为空间基调,营造出一份岁月安好温馨静谧的格调,金属元素又让家里多了几分精致。生活是茶米油盐,需要有大量柜体用来满足储物需求,所以我们在电视背景墙做了大量柜体。
【主卧】
“静”是主卧设计的出发点,隐藏门、素净颜色,“less is more“的设计手法......设计师极力凸显空间的”静“。
为了让空间不显单调,设计师在天花上走了一圈金属线条。
业主喜欢阅读,设计师在卧室设置了大量柜体用来放置业主的诸多藏书。
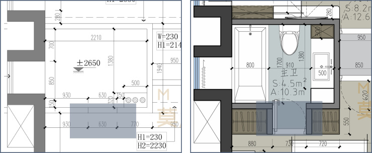
【主卫】
主卫的门设计成隐藏门,关上门的时候就是造型墙。
【小孩房】
整个女儿房以“我是小公举”为导向,采用小清新的淡蓝色与”公主粉“营造出一种温馨烂漫的格调。小孩房的空间有限,利用了飘窗台做了个书台,大大提升了空间利用率。
【老人房】
【公卫】
大理石与金属材质营造出一种干练简约的格调。
【过道】
过道贯通家的每一个空间,让空间有恰大好处的延伸感。端景装饰画很好的点缀空间,一步一景,步步有景,每进一步都能给人新的美感。
【阳台】
生活阳台设置了大大的壁柜,满足业主生活需求。
声明:本文由入驻焦点开放平台的作者撰写,除焦点官方账号外,观点仅代表作者本人,不代表焦点立场。
