太香了!首付不到45万买深圳前“日光盘”,深圳人准备开抢!
扫描到手机,新闻随时看
扫一扫,用手机看文章
更加方便分享给朋友
新城华苑、华越龙苑等热门项目还在收割人才中,安居房突然加入,深圳保障房也要上演“抢客”大战?
3月13日,深圳市住房保障署发布了缙熙园、深房光明里、伟城贤德瑞府等三个项目安居型商品房的配售通告。
通告显示,本次三个项目共有1077套房源配售,其中两房户型793套,三房户型284套(含37套无障碍住房)。
安居房一般是市场价的5折,比人才房还要便宜一些。这批次安居房配售均价21950元/㎡起,最便宜的一套房源首付约38.7万。
当然安居房的申购门槛不同,主要面向在册轮候人,符合条件的领军人才配售。本批次安居房网上认购时间为3月14-24日,3月24日18:00前未完成网上认购的,视为放弃认购。
原文链接如下:
http://zjj.sz.gov.cn/xxgk/tzgg/content/post_11189122.html
深房光明里
这批次安居房中,地段位置、综合配套最好的莫过于深房光明里。
关注楼市的人都知道,2023年深圳新房市场一共就诞生过4个“日光盘”,其中一个就是深房光明里。
去年9月份,深房光明里推出337套住宅,备案均价4.46万/㎡,带简装修交付。项目开盘吸引了1010组客户冻资,入围比如高达1:2.99,接近1:3,最终历经3小时鏖战,全部房源售罄。
深房光明里“日光”的原因很简单,无非就是地段+配套+价格的组合优势。
如今相同地段,相同配套,但价格只要商品房一半的安居房来了,相信一样会引起众多刚需客青睐。
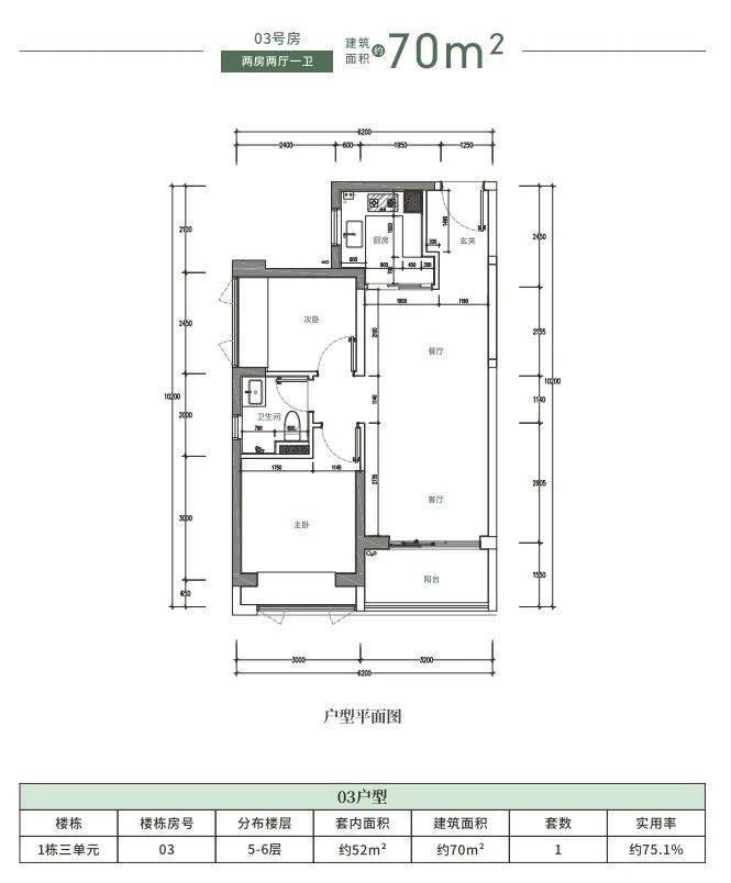
根据配售公告显示,深房光明里此次供应的安居房只有67套,数量非常之少。其中,约67-70㎡的两房有54套;约86㎡的三房有13套,整体的配售均价为23199.80元/㎡,具体来看:
两房总价区间:149-167万/套
三房总价区间:193-201万/套
也就是说,首付最低不足45万,就可上车前“日光盘”,这样的机会你抢不抢?
另外,深房光明里住宅塔楼为装配式建筑,室内为精装修,又省下一笔装修费用,安居房与商品房一样,预计2025年6月30日前交房。
伟城贤德瑞府
伟城贤德瑞府是光明公明片区的一个新房,该项目曾在今年1月5日配售过一次,当时供应736套房,最终仅去化222套,此次配售的是剩余的514套房源。
514套房中,两房占比很大,共有367套,户型建面约70㎡;三房有147套(含无障碍住房37套),户型建面约90㎡,整体的配售均价21950元/㎡,具体来看:
两房总价区间:129-160万/套
三房总价区间:197-222万/套
按最低总价来算,3成首付大概是38.7万,价格非常不错。
当然,同样的伟城贤德瑞府住宅塔楼为装配式建筑,室内为装配式装修交付,预计交付使用时间为2025年11月30日前。
相比较深房光明里,伟城贤德瑞府的位置要偏一些,位于公明片区,邻近在建的13号线公明北站,当然项目价格也便宜一点。
除了地铁配套之外,项目还有一个宣传的卖点是邻近深圳外国语光明校区,地图测距两者的直线距离在800米左右,但能不能划入“深外”,就得看教育局划分了。
虽然有地铁、学校等配套加持,但项目第一次销售数据遭“滑铁卢”,最重要的还是地理位置相对较偏,周边以工业园区为主,同时距离商圈较远,短期内生活氛围难以得到改善。
缙熙园
缙熙园是信城开发的项目,位于龙华观澜,周边有招商雍云府、万科九龙山等商品房住宅。
项目供应安居房496套,其中两房户型房源372套,建筑面积约68㎡;三房户型房源124套,建筑面积约89㎡,整体的配售均价为28205元/㎡,具体来看:
两房总价区间:185-196万/套
三房总价区间:246-257万/套
按最低总价来算,3成首付大概是55.5万。去年入市的招商雍云府同样68㎡的户型,首付最低是94.8万,安居房的价格是真的香啊。
项目住宅塔楼为装配式建筑,室内为精装修,预计交付使用时间为2026年3月30日前。
缙熙园是纯保障房项目,由2栋安居房和1栋企业自持保障性租赁住房组成,产品较为纯粹。
缙熙园位于九龙山数字科技城板块,邻近华为九龙山工业园,区域内有产业配套支撑;同时还有招商雍云府、万科九龙山等小区,能形成一定的居住氛围。
但劣势也比较明显,项目周边缺乏轨交配套,距离现有的4号线长湖站约3公里,周边近5年没有地铁规划,短期内地铁出行相对不便。
声明:本文由入驻焦点开放平台的作者撰写,除焦点官方账号外,观点仅代表作者本人,不代表焦点立场。


