1141套住宅,前海深业云海湾户型图曝光!主打108-180单位
扫描到手机,新闻随时看
扫一扫,用手机看文章
更加方便分享给朋友
位于前海的深业云海湾项目目前已开放展示中心,项目预计也快要入市了。
据了解,总共1141套住宅,项目共8栋住宅,其中5栋为商品房共637套,其余3栋均为人才房504套。毛坯限价9.2万,装修预计9.7万/平。
主打户型为:约108-115-143-180㎡ 3-4+1房。
项目地段较好,项目地块是前海最低的限价地之一,此前,项目旁天健项目入市,单价最低在8字头。
深业云海湾位于桂湾片区三开发单元03街坊,项目用地于2021年11月25日深圳三轮土拍中,由“深业+盐田人才安居”联合体以总价86.6亿元竞得,与天健集团拿下的前海T201-0157宗地相邻。
商品住宅限售均价9.2万/㎡,人才房最高限售5.8万/㎡,均为毛坯价格。
项目土地面积为51350.36㎡,建面为210040㎡。其中容积率总建筑面积不超过210040㎡,其中住宅190000㎡、商业10000㎡、公共配套设施10040㎡。
交通配套方面,最近地铁为15 、11号线,前方站直线距离1公里,地图显示所需约16分钟,此外开车前往各区都比较便捷。
商业配套
项目自带1万平商业,周边多为开发建设项目,商业配套相对缺乏,日常购物需求可前往龙海商业广场,地图显示,步行距离约为1.2公里左右,也可步行华润前海万象城距离1.6公里,所需时间约为18分钟左右。此外,可前往前海壹方城,自驾车辆约为10分左右。
教育配套
最近学校有前海港湾小学、北大附中(南山分校),最近的为前海港湾小学,直线距离约为400米左右。楼下就是72班的9年1贯学校,斥资9亿打造,硬件配置相当豪华的一所学校,预计是2024年秋季开学。
附户型图:
A1户型106平3房2厅2卫
A2户型108平的3房2厅2卫
B1竖厅116平的3房2厅2卫
B3横厅116平3房2厅2卫
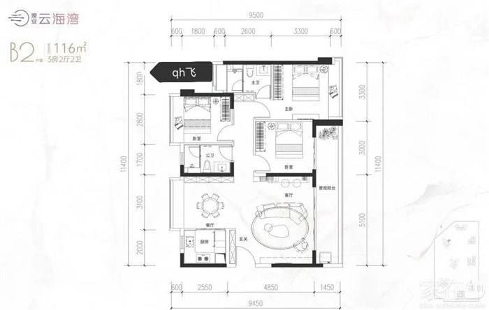
B2横厅南北通透,116平3房2厅2卫
C户型143平的4房2厅2卫
183平的4+1房2厅3卫
来源:咚咚找房
声明:本文由入驻焦点开放平台的作者撰写,除焦点官方账号外,观点仅代表作者本人,不代表焦点立场。


