已封顶!福田安居景贤阁户型图曝光
扫描到手机,新闻随时看
扫一扫,用手机看文章
更加方便分享给朋友
日前,深圳人才安居官宣位于福田的保障房项目-安居景贤阁项目已封顶,同时还公布了项目户型图。
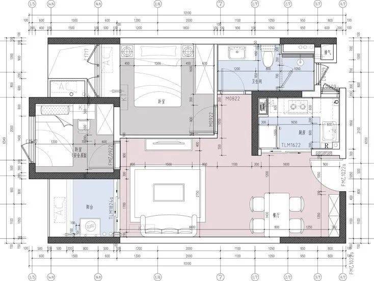
安居景贤阁项目位于福田区莲花街道景田北四街北侧,由人才安居集团旗下福田人才安居公司投资建设。项目总用地面积3084.22㎡,总建筑面积21213.52㎡,共提供150套保障性住房,有65㎡两房户型100套,80㎡三房户型50套,可满足单身或家庭需求,预计于2024年8月底完成竣工备案。
安居景贤阁项目位于地铁“香梅北站”500米及“景田站”1公里范围内,周边居住氛围浓厚、配套设施齐全,拥有幼儿园、小学、初中及高中等优质教育资源,广州中医药大学深圳医院、北京大学深圳医院等医疗资源,景田街心公园、梅林山公园、莲花山公园等景观资源,三公里范围内畅享图书馆、少年宫等深圳城市中心配套。
根据规划,安居景贤阁包含可售人才房和公租房,其中公租房约占1/3,具体可售人才房配售公告需等住建局官方公示。
声明:本文由入驻焦点开放平台的作者撰写,除焦点官方账号外,观点仅代表作者本人,不代表焦点立场。


