加大飘窗面!光明“最贵”新盘户型图曝光了
扫描到手机,新闻随时看
扫一扫,用手机看文章
更加方便分享给朋友
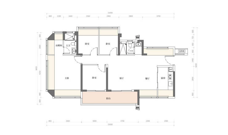
光明“最贵”新盘户型图曝光了,这也是深圳建筑新规后光明首个“调规”户型设计的新盘。
日前,光明可售限价破“5字头”的新盘-中建观玥户型图曝光,项目主推建面约80-89-107-110㎡的三房两卫和四房两卫户型。
话不多说,先来看看户型图,本次释放了三个户型:建面约80㎡、89㎡、110㎡的3-4房。
户型最大的亮点在于,善于利用飘窗,且飘窗的进深都做到了80公分,相比之前项目飘窗多控制在60公分,这多出来的20公分也有效的提高了户型使用空间。
建面约80㎡的3房,主卧两面飘窗;
建面约89㎡的3房,主卧及一间次卧都是两面飘窗,另一间次卧则连通阳台;
以上两个户型预留了鞋柜和冰箱空间位。
建面约110㎡的4房基本上每个空间(卫浴外)都带飘窗。
当然,目前展示对外的是户型,具体的户型居住体验还需等样板间开放后实地感受。
光明区凤凰街道,处于光侨路与观光路交汇出东南侧,与南方科技大学附属光明凤凰学校、在建的13号线二期北延同观路站一路之隔。

项目总用地面积约1.4万㎡,总建面约11.5万㎡,规定建面约7.7万㎡其中包括约7.2万㎡住宅,2000㎡商业,2150㎡幼儿园,以及其他公配。
住宅方面,项目共计820套房源,其中租赁型保障房101套,可售商品房住宅719套,规划停车位900个。
近日,深圳规自局光明管理局公示了项目分宗地块设计条件。
分宗后,地块一主要建设住宅产品,规定建面约7.5万㎡,容积率≤5.25,机动车泊位数898辆。
地块二主要建设幼儿园,将建一所6班制幼儿园,建设用地面积约1800㎡。
中建观玥,从土地出让开始就备受关注,当时规定TA的限售均价≤5.03万/㎡,在相当于把光明新房价格回调到前期“旺季”的最高价,这个限价对比深房光明里限价(毛坯限可售均价约≤4.46万/㎡)相差约5700元/㎡。
作为近几年光明的重点建设板块,光明凤凰城新建的新盘不在少数,其中,拥有价格、地段双优势的深房光明里在去年开盘便实现了“日光”。现阶段中建观玥周边还有多个新盘在售,包括润晖府、润曜府、中海时光境等小区,这些小区的限售价在4.89万/㎡左右,目前已经有项目把销售折扣给到了85折,单价在3字头起步。
而中建项目限价是5.03万/㎡,如果按照这个价格备案销售,就目前的市场情况来看,项目的市场竞争压力着实不小。
当然,这个价格也是项目申请备案均价的的封顶价,在楼市火爆时相当于新盘的出售备案价,不过从2023年来看,已经不少的限价新盘都低于限价标准出售,预计中建观玥也将会按市场调整其售价,具体以项目最终公示为准。
中建观玥所处凤凰板块,周边汇聚有众多市政公园配套,由于现阶段项目周边均在开发商建设期,短期内生活及商业配套暂不足,预计在周边建成后会有同步提升。
轨道出行方面,项目是13号线同观路站地铁盘,同时邻近光明城交通枢纽,可换乘地铁6号线二期,或搭乘广深港高铁,轨交出行较为便利。
教育资源方面,项目西北侧是南科大凤凰学校,东侧是待建的九年一贯制光明城学校(暂定名),据悉,光明城学校已完成立项,正在加快开展前期相关工作(来源:深圳光明公众号)。综合而言,周边教育资源相对丰富,但具体学区划分以教育局公示为准。
商业方面,周边的小区均带有部分住宅底商,大型商业需得前往凤凰城站的蓝鲸世界、万达广场,或者光明中心的星河系商业,未来经地铁13号线可通达。
综合来看,中建观玥拥有相对较好的地段优势,但周边在售新盘较多,且多为名企社区,面临的竞争压力不小;此外,从项目规划来看或主要以刚需户型为准,不排除与周边项目存在同质化的问题,就看能不能凭借户型突出重围。
声明:本文由入驻焦点开放平台的作者撰写,除焦点官方账号外,观点仅代表作者本人,不代表焦点立场。


