总价243万起!今年买入福田的较低门槛来了
扫描到手机,新闻随时看
扫一扫,用手机看文章
更加方便分享给朋友
福田福保街道的港湾之心获批预售许可证!备案总价约243万起!
作为今年福田置业门槛较低的新盘项目-
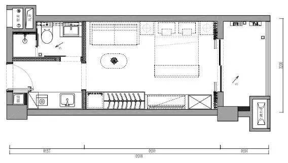
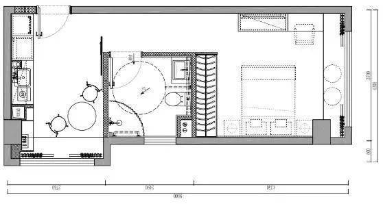
港湾之心,之前有传将作为人才住房,如今以获批预售许可证,预计近期发售。项目备案名为自由港湾公寓A栋,共备案305套房源,主推户型建面约30-45㎡,备案单价约7.5-9万/㎡,整体均价约8.35万/㎡,备案总价约243万起,为带装修交付。
港湾之心规划 地上8层,地下2层,1层有45户。
从项目效果图中来感受这密集。

港湾之心单价不算便宜,胜在户型小,总价低,不过值得注意的是,港湾之心的物业性质为单身公寓,土地性质为住宅用地,用地等级不明,属于非普通住宅,这对购房者而言就有些尴尬了。
单身公寓是怎么定义的呢?单身公寓的诞生最早是从租赁市场中出现的,有业主将空置的整幢商品房,经过简单装修后推向房产租赁市场,面向中层收入的白领出租。单身公寓又称白领公寓、青年公寓,是一种过渡型住宅产品,是住宅的一种,结构上的较大特点是只有一间房间,一套厨卫,没有客厅;或者有客厅,没有厨房,同一房一厅户型比起来较小些。
故,这类房产比较适合单身或小两口过渡居住,如果想换房出售,交易税费可不便宜。
据了解乐有家研究中心整理的二手房过户税费缴纳表显示,单身公寓属非普通住宅,需缴纳的税费与商业一致,满5年后再出手,需缴纳的增值税为(过户价-原价)/(1+5%)*5%。
港湾之心项目介绍
港湾之心A栋总建面约2万平米,项目为8层小高层设计,主力产品为30-50平小面积单位,层高3.1米,一共是304户的小体量社区。
港湾之心位于福田保税区,京港澳高速以南,四周被自由港湾、红树绿洲、桂花苑及福苑小学包围,距离3号线起始站福保站约700米。
周边配套
港湾之心自带有小型商业裙楼,周边有天虹商场、福田口岸商业广场、永旺超市,不过大型购物商业则需前往中心区地段的卓悦INTOWN购物中心、星河COCOPark等等,所在福保片区的商业环境一般。
教育方面,根据目前福田教育局的学区划分,港湾之心小学学区为福苑小学,中学学区为福田外国语学校南校区初中部,幼儿园是福田区第八幼儿园,(具体学区入学划分以当年区教育局公布为准)。
港湾之心项目距离红树林公园800米,整个红树林串通南山深圳湾公园,生态环境优秀,绿化条件也非常好。
户型分析
这个价格,你心动吗?
声明:本文由入驻焦点开放平台的作者撰写,除焦点官方账号外,观点仅代表作者本人,不代表焦点立场。


