3房折后首付约60万起!龙岗中海新盘值得冲吗?
扫描到手机,新闻随时看
扫一扫,用手机看文章
更加方便分享给朋友
龙岗新盘总价低至1字头?
日前,位于龙岗东的阳光新都荟花园(备案名,推广名为中海新都荟)获批预售证,备案住宅544套,主推户型建面约40-89㎡产品,备案单价约3.05-3.53万/㎡,总价区间约151-345万。

从备案价来看,整个小区的首付约100万以内,最低首付更是低至45万左右,妥妥的低价上车刚需盘。
价格还有“惊喜”,当下市场行情新盘入市开盘折扣必不可少。据现场置业顾问称目前开盘优惠方案尚未确定,预计折后均价约2.9万/㎡左右。如果按这个价格算下来,开盘优惠大概在83折左右。(具体优惠方案以项目最终公示为准)
如此来看,阳光新都荟花园建面约79㎡的3房最便宜的242万/套计算,折后首付约60万起~,这个价格便宜吗?(具体看下文与周边二手房房价对比)。
此外现场置业顾问表示,本次建面约40-70㎡的小面积段是不售的,可售的主力户型为建面约79-89㎡单位。
根据阳光新都荟花园发布的开盘公告中显示,本次备案的所有房源都在销售范围内,项目为毛坯交付。而置业顾问称会送装修交付,具体的以合同约定为准。

阳光新都荟花园目前已经上线I深圳诚意登记,登记时间为1月19-23日,诚意金5万,将于1月27日线下选房。
那么,价格已经这么有诚意了,阳光新都荟花园值得刚需入手吗?
项目介绍
阳光新都荟花园原为中信龙盛广场的二期项目,中海地产并购了中信地产后由中海开发。
阳光新都荟花园位于龙岗地铁16号线龙东站C出口,位于中信龙盛广场东侧,项目东北侧还有已经成熟的社区中骏四季阳光城。

阳光新都荟花园规划总建面4.5万㎡,规划6栋24-31层的高层,容容积率3.18,属于目前市面上较为少见的低容积率新盘。

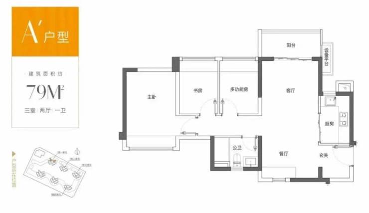
阳光新都荟花园主推的户型为建面约79-90㎡3房单位,现在的户型都做的挺“卷”,在功能设计上都比较细致,这个项目也是,户型实用率比较高,不过户型图上没有标准尺寸。
既然是刚需盘,那么就从“三板斧”来看阳光新都荟花园是否值得入手。
轨道交通方面,阳光新都荟花园位于16号线地铁口,往东可以前往坪山高铁站,往西到两个站到双龙站可以换乘3号线快捷到龙城、大运等核心板块,相对较为便捷。
不过项目本身所处地理位置相对较偏,前往市区需要从16号线换乘3号线再换乘14号线,通勤时间仍较长。
教育方面,项目配建有1所9班幼儿园,义务教育阶段的中小学区,根据2023年龙岗区教育局学区划分,则在大学龙岗中学(集团)附属同心实验学校,距离约800米。
该校创办于2018年9月,是1所九年一贯制45班公办学校,据了解,该校2023年小一录取积分86.05分,具体入学以当年教育局相关政策为准。
商业方面,项目自身规划有建面约1.25万㎡商业,邻近有已经开业的中信龙盛广场2.2万㎡商业街区-中信龙盛新天地,是片区内相对较大型的综合体商业。稍远到双龙、龙岗中心城还有海航城商业、万科广场、世贸百货等综合体。
目前周边生活配套已经成熟,不过阳光新都荟花园北侧有大片空地,在拥有“生态”的同时,也可能会因后续规划调整而面临施工噪音。
再来来看看大家最为关注的二手房房价对比,周边的中信龙盛广场和中骏四季阳光二手房的最新成交价。
据行舟深房小程序成交数据显示,中信龙盛广场12月成交的88㎡3房单价约2.81万/㎡,而中骏四季阳光在12月成交的两套单价也在2.9万/㎡左右。


这也说明,阳光新都荟花园的“折后价”比较匹配当前的市场价,于当前周边二手房的价格相差无几。
综合来说,对于需要在市内通勤的购房者可以多加考虑通勤成本,对于想要在片区买房的本地购房者可以多对比周边二手房的情况。
当前市场行情,你选择新房还是二手房呢?欢迎评论留言~
声明:本文由入驻焦点开放平台的作者撰写,除焦点官方账号外,观点仅代表作者本人,不代表焦点立场。


