卷飞!深圳中部一片区7大新盘集中“厮杀”
扫描到手机,新闻随时看
扫一扫,用手机看文章
更加方便分享给朋友
日前,深圳住建局公示了三季度计划入市的新盘清单。
发现,近几年一向是供应大区的龙华突然“哑火”了,在三季度计划入市的1.5万商品房住宅中,龙华仅有2个项目不到1500套房源将上新,而且这两个项目均在龙华北的观澜板块。
早在2024年初统计龙华区域新盘供应计划时,就发现观澜(含观澜、观湖、福城三个街道)将要入市的新盘比其他区域要多,而上半年,随着其他板块新盘陆续加推入市,接下来,龙华楼市的主场或转移到观澜。
据不完全统计,今年年底观澜或7个新盘计划入市,这些新盘中有大型旧改盘,如鸿荣源观城、溪山禾玺等,建设周期长,未来可以持续供货。
在说项目之前,先聊聊观澜的发展前景。
龙华作为深圳的中轴地带,近十年的发展迅猛,一度被称之为“宇宙中心”,龙华北部的观澜(观澜、观城、福城统称)的城市面貌革新虽然不如龙华南。不过从规划可以看出,龙华南主要打造超级商业圈,观澜则主要定位数字经济产业科技圈。

先来说说观澜的产业基础。
目前而言,观澜集中了龙华近70%的产业,是龙华产业基础最坚实的板块,以数字经济为基础打造高新产业基地,打造了龙华高新区、鹭湖科技文化片区、九龙山产学研片区、福城汽车及智能制造产业区等。
据报道,截至2020年,观澜鹭湖辖区内聚集了260余家国家高新科技企业,福城街道的国家高新技术企业增至148家,仅九龙山科技城就汇聚了电子科技、富泰华、泰衡诺等32家规上企业,总产值达2500亿元。(具体以最新公示为准)
拥有夯实的产业基础,产业发展壮大吸引更多人才流入,可以说未来观澜的情景可观。
再来看看观澜的旧改。
在观澜已有华盛、万科、合正等知名房企打造了城市更新小区,还有体量庞大的旧改项目在路上。
据不完全统计,未来观澜片区共有108个村旧改项目,超过300个工业区旧改项目,总面积逾2500万㎡的城市更新,包括目前在建的鸿荣源、金光华、深物业等大型房企的更新项目,以及规划中卓越、中森等房企也有不小体量的旧改。

图|源于网络
旧改成功推动后有利于城市面貌整体革新,如当前的观澜中心片区,已经有佳华、深业的小区,未来鸿荣源连片旧改建成后,整体环境将得进一步提升。
当然,旧改推动阻力比较大,不确定性因素比较多,这也是个长周期的事情。
最后来聊聊观澜的市政配套。
有产业,有社区吸引了众多深圳人前往,观澜除了自身良好的生态配套外,市政配套也在不断加强完善。
地铁方面:2020年10月地铁4号线北延线至观澜牛湖的线路正式开通,观澜进入地铁时代;目前在建地铁22号线,未来从观澜途经龙华中心通往福田香蜜湖等核心地段,未来的交通便捷度更高;
文体配套:除了已经投入使用中的观湖美术馆,目前在建还有观湖文体中心(已封顶,含图书馆、音乐厅、体育馆于一体)、龙华四馆(科技馆、图书馆、群艺馆、大剧院)。未来市政人文配套得以实质性提高。

此外,还有观澜河干流碧道建设项目,全长约14.2km,主要在观澜境内,将建生态廊道、休闲漫道、文化驿道。未来,观澜人民休闲又添好去处。
说完区域,再继续来了解一下接下来要入市的新盘详情。
以上7个待入市的新盘,主要沿着地铁4号线分布,且产品多以刚需户型为主。
其中,鸿荣源观城、上观府、溪山禾玺首府、澜汇云境花园的位置相近,处于观澜中心板块,鹏瑞颐璟府二期位于龙华高新园片区,产业较为发达,未来有地铁22号线途经,而深物业澜湖时代、珑门壹品处于观澜较为边缘的地带,尤其是珑门壹品,周边生活配套匮乏。
鸿荣源观城
首期观城时尚花园共规划1566套住宅
鸿荣源观城位于龙华观湖街道观澜大道与梅观高速公路交汇处东南侧,4号线观澜站地铁口。
鸿荣源观城共分六期开发,项目更新单元拆除用地面积72.65万㎡,开发建设用地面积38万㎡,计容积率建筑面积为275.1万㎡。将分六期开发,业态涵括住宅、商业、办公、创新产业用房、教育及相关文体配套设施。一期组团有三期已经建设备案,备案名分别为:观城未来花园、观城时尚花园、观城世纪花园。
观城时尚花园属于观城第一期项目二期工程(08地块)。
观城时尚花园占地约2.73万㎡,总建面约37.4万㎡,规划商品住宅约15.6万㎡、办公约6.3万㎡,商业约0.7万㎡,以及约2.4万㎡的公共配套设施(含15班幼儿园)。
本期共规划1566套房源,规划机动停车位2220个。
观城时尚花园处于一期工程的"C位”,目前这个地块的施工进度相对比较快,目测已建超20余层,最快下半年可以入市。
【鸿荣源观城介绍请戳:鸿荣源又一座“超级大城”,首批或年底入市】
溪山禾玺
首期溪山禾玺首府共规划448套房源
溪山禾玺位于龙华区观澜街道龙华大道东侧,民和路和布新路交汇处东北角。
整个项目规划总容积约75.4万㎡,其中,住宅59.9万㎡(含公共租赁住房约8万㎡),商业、办公及旅馆业建筑10.2万㎡,公共配套设施(含地下)5.3万㎡(含1所18班幼儿园、1所15班幼儿园及文化活动中心等)
溪山禾玺首府或是溪山禾玺的首发产品,在01-06地块位置。

项目总占面约0.95万㎡,总建面约6.3万㎡,计容建面约4.8万㎡,容积率5.03。其中,住宅建面约3.9万㎡,商业建面约1400㎡,规划房源量454户,停车位450辆。
规划建设1栋两个单元的超高层,其中1栋1单元为42F、1栋2单元为41F。
目前已经出地面5层左右,项目营销中心预计10月开放,主推建面约72-95㎡的产品,预计快的话年底可入市。
【溪山禾玺详情介绍请戳:起底龙华百万建面大城,首批或年底入市】
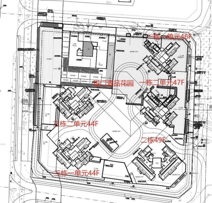
深物业澜湖时代
首推景愉府共592套房源
澜湖时代位于龙华观光路与桂花路交汇处的东北侧,居于观澜乃至整个龙华靠北的位置。
澜湖时代用地面积13.4万㎡,拆除范围用地面积12.1万㎡,开发建设用地面积6.8万㎡,总建面约62万㎡,规划容积为43.3万㎡,容积率6.3。其中,住宅23.4万㎡(含保障性住房2.4万㎡)。
澜湖时代的住宅部分分三个地块开发,分别为澜湖时代景愉府(02地块)、澜湖时代景怡府(03地块)、澜湖时代景悦府(01地块),总规划约2700户。

首期将推出的是澜湖时代景愉府,目前已经开放样板间,预计将于8月底或9月入市。
澜湖时代景愉府总占地面积约1.26万㎡,总建筑面积约10.57万㎡,计容建筑面积约7.32万㎡,容积率5.76,绿化率40.01%。
项目由1栋3个单元组成,其中1栋1/2单元总高50层,1栋3单元总高38层。总规划744户,其中可售商品房592套,面积73-115㎡2-5房,停车位866个。
澜湖时代景愉府主推建面约73-85-95-115㎡的2-4房,以刚需产品为主,套内面积均在90㎡以内。
目前,项目已经封顶,快的话预计8月底入市。
珑门壹品
将推900套住宅房源
珑门壹品位于龙华区观澜街道君子布社区,环观南路与平大路交汇处,东侧是观澜山水田园,南侧为龙华观澜实验学校,大区域临近龙岗平湖。

珑门壹品规划住宅建筑面积11.7万㎡,含保障房3806㎡;商业、办公、旅馆业建筑面积3.3万㎡;公共配套设施1.2万㎡,含9班幼儿园建筑面积3000㎡。
项目共规划5栋超高层单元楼及一栋幼儿园,整体围合式布局。总住宅量1203套(含56套保障性住房)。
目前珑门壹品已经开放了营销中心,样板间尚未开放,将推的产品户型为建面约68-84-90-114-116㎡2-4房产品,预计9月入市。

上观府
楼体已封顶,一期仅售75套?
上观府位于龙华区观湖街道平安路有轨电车石头角站旁,与已入市的景勋天著隔路相对,与鸿荣源观城相邻。
上观府原为非农建设用地项目,共7个区,分两期开发,建设用地面积约17823.52㎡,总建筑面积约84317.17m,含6栋住宅和1栋幼儿园,共计191户。从官方公示的数据来看一期仅有75套住宅房源,且户型均是套内≥90㎡的产品。


整个项目呈一字排布。

目前项目已经建成,不过@搜狐焦点深圳 实地走访发现项目并没有进入推广期,而临近项目的置业顾问称其为“小产权房”。

值得注意的是,上观府原为非农建设用地项目,目前暂不确定能否像正常商品房一样交易,具体以官方最终公示为准。
鹏瑞颐璟府二期
约384套房源,已是现房
鹏瑞颐璟府位于龙华区观湖街道鹭湖科技文化板块,坐落于观澜高新园区范围内,目前一期已经交付入伙。
鹏瑞颐璟府二期总建面约5.2万㎡,住宅建面约4.8万㎡,住宅户数约384户,其中小于90平的有240户。

项目一期于2021年9月推出,共1659套建筑面积约79-143平3-4房,备案均价约5.52万/㎡,现已售完。二期营销中心尚未开放,可参考一期的户型及价格。

二期已是现房状态,所见即所得。

澜汇云境花园
共规划1883套住宅
澜汇云境花园是合正观澜汇三期的第二批产品。
合正观澜汇作为观澜目前已经成熟的大型综合体项目,且有地铁、商业配套的加持,是当前片区的标杆项目,市场热度颇高。
合正观澜汇三期分两个地块开发,分别为澜汇云庭、澜汇云境花园,其中澜汇云庭已经入市并在售状态。澜汇云境花园则在建尚未入市。
澜汇云境总占面约3万㎡,总建面约36万㎡,容积率8.86,计容建面约26万㎡。其中,住宅约16.8万,酒店约6.4万㎡,规划有商业文化设施及21班幼儿园等社区配套。
本项目共规划1883套住宅,其中有1733套套内建面<90㎡,也就是说,项目以刚需户型为主。


目前澜汇云境尚未到推广期,产品和价格方面可参考澜汇云庭,项目于2023年7月入市,主推建面约103-131㎡产品,备案均价约5.45万/㎡。
观澜板块虽然前期入市的项目不少,但少有这么集中,在今明两年或是看这7盘的厮杀。不过,当前楼市下行期,各板块的房价极卷,观澜片区也不例外。相比之下,之前备案普遍在5万以上的房价,如今应该少见了或者在折扣上给够。
以上7盘,你最看好谁?欢迎评论留言。
声明:本文由入驻焦点开放平台的作者撰写,除焦点官方账号外,观点仅代表作者本人,不代表焦点立场。


