均价5.76万/㎡ 沙井海岸城将开盘?海岸城:正等待官方消息
扫描到手机,新闻随时看
扫一扫,用手机看文章
更加方便分享给朋友
网友爆料称,沙井海岸城预计均价5.76万/㎡,近期将开盘!
因为关注度太高,项目一直频频传出要入市的消息,此前,海岸城曾两次发布声音,销售工作还在筹备。
据海岸城相关消息,目前正在等待官方通知。
目前只是网传的备案价,具体以官方公示为准。

12月11日,万丰海岸城官微发文:万丰海岸城销售工作正在筹备中,未进行销售接待、客户登记工作和中介机构委托。
任何第三方人员以“提前选房”、“帮忙打折”、“诚意客户登记”等为由,私自向客户收取“喝茶费”或定金、礼品等行为与海岸城无关,均属恶意诈骗行为,敬请广大客户提高警惕,谨防上当受骗。
一切项目信息以官方途径为准,请关注《沙井海岸城》微信公众号获取信息。
针对沙井万丰海岸城项目的传闻,万丰海岸城只在9月22日通过公众号曾发布声明回应:称当前市场上有部分网友及地产中介对万丰海岸城项目销售时间、推售套数、销售价格等销售信息存在误导性传播。项目尚未取得预售许可证,亦未确定开盘时间、销售价格、销售方式等。
海岸城项目介绍
沙井海岸城位于宝安区新桥街道内,地铁11号线马安山站的东侧,南环路和西埔路的交汇处,周边分布有万科星城、博林西岸等新盘。
海岸城锦园是沙井海岸城项目的一期,且是其中的一个地块,建设用地面积8959.75㎡,仅占沙井海岸城整体建设用地面积的7%,其中幼儿园占地3600㎡,总建筑面积约7.75万㎡,计容机率建筑面积约5.63万㎡,容积率6.28。
一期主要由2栋33-43层高的住宅楼(含1栋33层保障房)及12班幼儿园组成,总户数488户,规划机动车停车位533辆,能够满足所有住户的基本需求。
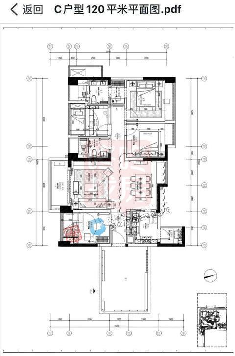
主力户型以建面约95㎡产品为主力,整体面向刚需需求,搭配120-140㎡面积段改善型产品,部分75㎡小户型,此次展示4种户型:
建筑面积约75㎡户型
建筑面积约95㎡户型
建筑面积约120㎡户型
建筑面积约140㎡户型
建筑面积约75㎡户型
建筑面积约95㎡户型
建筑面积约120㎡户型
建筑面积约140㎡户型
来源:深圳房地产信息网
声明:本文由入驻焦点开放平台的作者撰写,除焦点官方账号外,观点仅代表作者本人,不代表焦点立场。


