光明宏发万悦山3月中开盘,5.5万/平?辟谣:未定
扫描到手机,新闻随时看
扫一扫,用手机看文章
更加方便分享给朋友
2月25日,宏发万悦山发布关于网传宏发万悦山名庭虚假信息的辟谣公告!
当前市场上有部分网友及地产中介对宏发万悦山名庭项目销售时间、推售套数、销售价格等销售信息存在误导性传播,特此公告:
1、截止本声明发布之日,本项目尚未取得预售许可证,亦未确定开盘时间、销售价格、销售方式等。
2、若项目取得预售许可,将严格按照政府相关规定,公平、公正、公开、透明地开展销售工作,并通过官方途经公布相关销售安排。
3、本项目销售工作尚在积极筹备中,未对外进行任何客户接待工作。
4、对在网络或其他途经发布本项目不实言论或虚假信息的单位及个人,我司保留追究其一切法律责任。
近日,有自媒体传出宏发万悦山将于今年3月中旬开盘,3月初公示的消息。

该自媒体还预估了价格在5.5万/平上下。

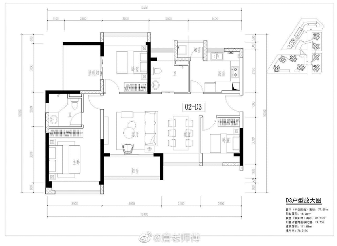
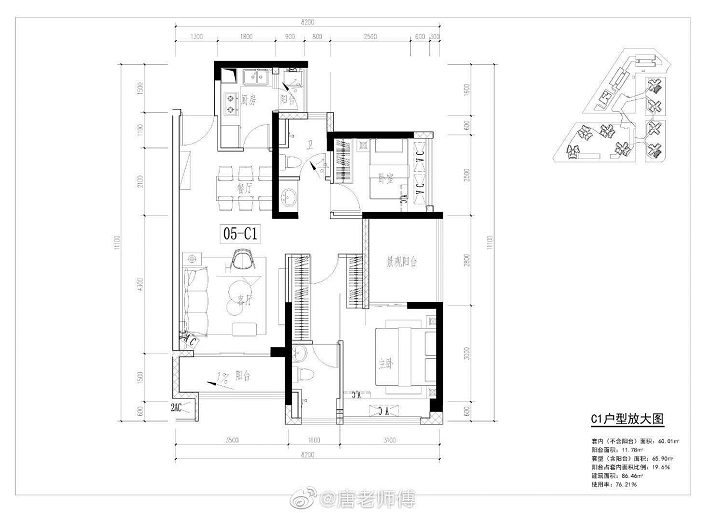
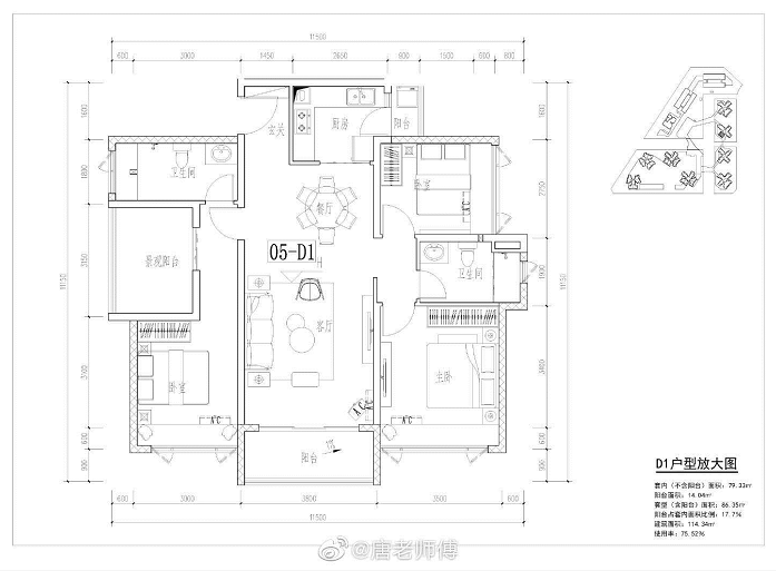
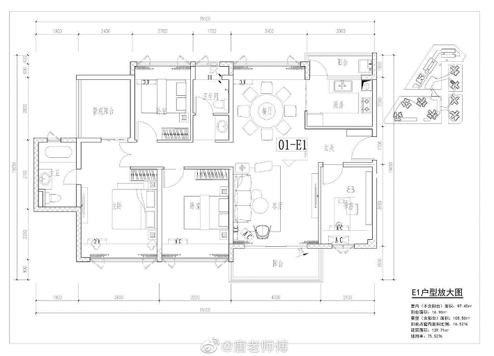
之前流出的户型图
87.87平户型:

111.81平户型:

86.46平户型:

114.34平户型:

139.71平户型:

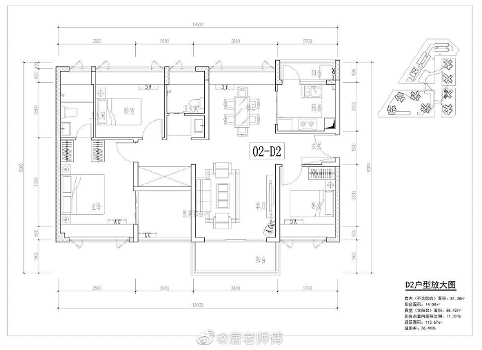
115.67平户型:

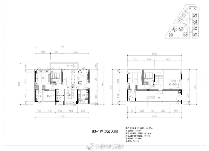
143.64平户型:

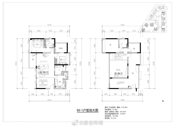
167.46户型:

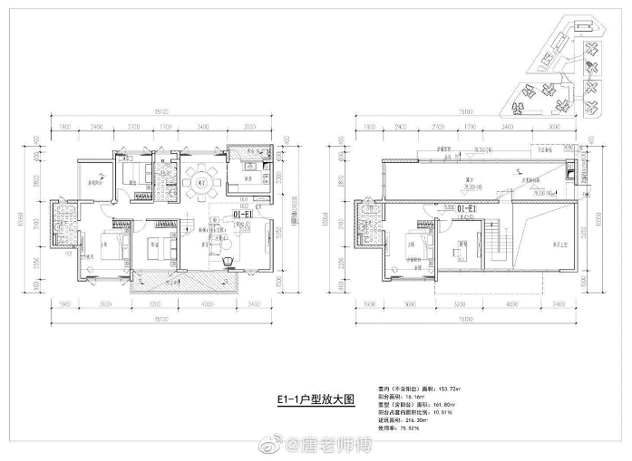
216.30平户型:

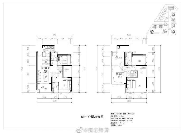
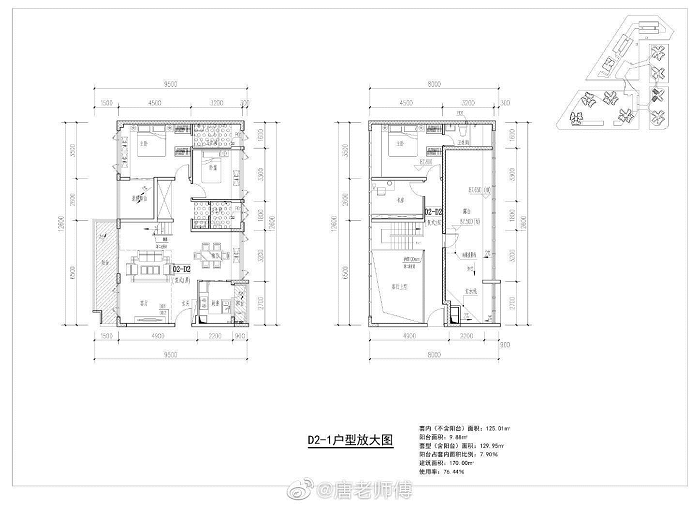
141.14平户型:

170.00平户型:

项目信息
项目位于光明新区光明大道与华夏路交叉口东南侧,紧邻地铁6号线,居于观光站和光明大街站之间,前后900米左右。
周边还有规划地铁13号线,未来开通之后,可沿地铁直达市区各处。
商业配套:项目配建0.6万平商业,沿地铁6号线周边规划有新地中央4万平商业和龙光玖龙台10万平集中商业。
目前光明人气稍显不足,营业的多为临街商铺和老牌商场,未来随着光明人气聚集,集中式商业或迎来发展。
医疗配套:距离项目500米处有光明新区中心医院,3公里范围内还有光明新建的中山大学附属第七医院。
教育方面:目前已有东周小学和深圳市光明中学,在高铁光明站附近还有光明新区外国语学校,已开学。
未来规划的13号线是覆盖中部西偏北的交通走廊,主要承接南山科技园、光明凤凰城人流量,并延长线预留至东莞松山湖,现阶段已招标,有望年内动工。
来源:楼市爆料
声明:本文由入驻焦点开放平台的作者撰写,除焦点官方账号外,观点仅代表作者本人,不代表焦点立场。


